Heute beginnt die Autodesk University 2024, die Design- und Make-Konferenz des Anbieters von Design- und Fertigungstechnologien.
Das NAVASTO-Plugin wird die Windkanalsimulation in den frühen kreativen Designprozess von Alias einbringen.
(Bild: Autodesk)
Designer, Ingenieure, Konstrukteure und Kreative aus aller Welt treffen in San Diego zusammen und lernen, beratschlagen und diskutieren gemeinsam zur Zukunft von Design und Fertigung (D&M). Für Teilnehmer aus den Bereichen D&M hält die Veranstaltung gleich mehrere Highlights bereit.
Eines der Fokusthemen in diesem Jahr ist das Thema Komplexität. Seit Jahrzehnten reagieren Hersteller auf die Anforderungen ihrer Kunden nach immer komplexeren Produkten, was wiederum die Komplexität des Designs und der Herstellung dieser Produkte erhöht. Die systematische Nutzung von Daten sorgt dafür, dass typische Herausforderungen, die mit der steigenden Komplexität von Produkten und Fertigungsabläufen einhergehen, leichter handhabbar und damit beherrschbar werden. In der Branche gibt es mehr denn je die Gelegenheit, den Wert zu nutzen, den KI, Daten und Digitalisierung bieten. Um dies zu tun, müssen Nutzer damit beginnen, auf die Daten zuzugreifen und sie zu vernetzen und die Erkenntnisse freizulegen, die sie bereithalten.
Dabei unterstützt sie die Autodesk Fusion Industry Cloud als Design- und Fertigungsplattform für die Herstellung. Sie ist eine zentrale Umgebung für alle Daten und eng mit Autodesk AI verbunden. Das ermöglicht unter anderem mühsame Aufgaben in Workflows zu automatisieren und Projektdaten zu analysieren, um prädiktive Erkenntnisse zu gewinnen.
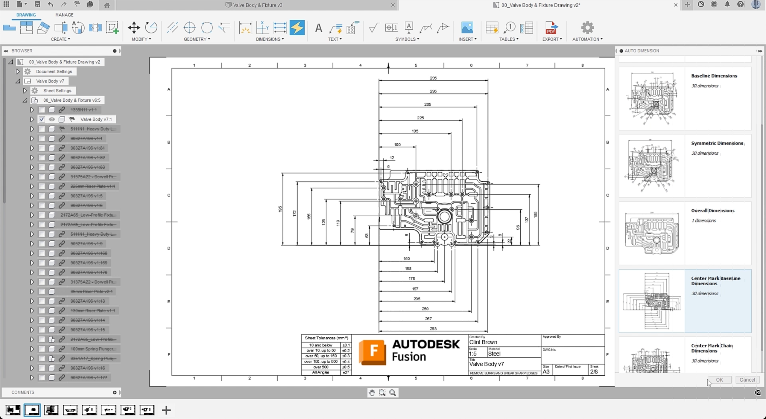
Von Autodesk AI unterstützte Funktionen in Fusion und Alias
Auf der Autodesk University 2024 werden einige der Möglichkeiten vorgestellt, wie Autodesk neue, von Autodesk AI unterstützte Funktionen in Fusion und Alias einführt, die die Produktivität bei der Gestaltung und Herstellung der komplexen Produkte von heute steigern.
Dazu gehören:
AI-gestützte Zeichnungsautomatisierung in Fusion.
(Bild: Autodesk)
AutoConstrain in Fusion Automated Sketching: Autodesk AI wird in der Lage sein, Projektskizzen zu analysieren, um räumliche Beziehungen zwischen Designaspekten zu erkennen – unter anderem Symmetrie, relative Größe und Beziehungen zwischen Teilen. Es wird dann dimensionale Einschränkungen vorschlagen, um die Designabsicht während des gesamten Projekts nicht aus dem Fokus zu verlieren. Zudem passt sich das Programm während der Nutzung an. Dies ermöglicht, Dimensionen während des Designprozesses bearbeiten oder löschen zu können, und bietet dann neue Optionen für ein stabiles, vorhersehbares Ergebnis. Die Automatisierung dieses Prozesses spart erheblich Zeit, die ein Designer möglicherweise damit verbringen würde, diese Beziehungen manuell zu definieren, und verhindert nachgelagerte Verzögerungen.
Drawing Automation in Fusion: Mit einem Klick untersucht die Zeichnungsautomatisierung 3D-Modelle und erledigt die zeitaufwändige Arbeit der Erstellung von 2D-Zeichnungen und Abmessungen, die zur Herstellung von Teilen erforderlich sind. Autodesk AI wird diesen Prozess nun noch weiter beschleunigen und optimieren, indem das Programm Zeichnungsblätter für jede Komponente in einem Modell anlegt, einen Stil anwendet und sogar Befestigungselemente identifiziert und entfernt, die nicht in die Zeichnungssätze aufgenommen werden müssen.
Form Explorer in Alias: Autodesk AI wird es Automobildesignern ermöglichen, realistische neue Designformen und -gestalten in Sekunden generativ zu erkunden. Es wird in der Lage sein, aus der historischen Stilrichtung einer Marke zu lernen und Designs zu erzeugen, die diese Stilmerkmale beibehalten, während ein Designer mit Änderungen experimentiert und sofort neue Iterationen erhält.
Autodesk Assistant in Fusion: Angetrieben von Autodesk AI ist der Autodesk Assistant in Fusion ein On-Demand-Experte, der sowohl mit Autodesk-spezifischem Wissen, wie den Fähigkeiten von Fusion, als auch mit allgemeinem Branchenwissen geschult wurde. Stellt man dem Assistenten eine Frage wie „Wie kann ich meinen Werkzeugweg programmieren, um Nutenfräsen zu vermeiden?“ oder „Welche Fertigungsmethoden sollte ich für dieses Teil in Betracht ziehen?“ und der Autodesk Assistant wird mit Fusion-spezifischen Antworten oder fertigungsspezifischen Antworten reagieren. Um eine Überprüfung zu ermöglichen, teilt er Hyperlinks zu den Originalquellen.
Mehr Möglichkeiten und externe Verbindungen in Fusion
Für vernetzte Workflows kreiert, hat sich Fusion über CAD und CAM hinaus weiterentwickelt und umfasst nun CAE, ECAD, PLM, MES und mehr. Auch hier gibt es deshalb einige Neuerungen, die auf der AU präsentiert werden:
Eine neue API für das Fertigungsdatenmodell, die es Nutzern ermöglicht, Daten einfacher mit den granularen Datenmodellen in der Cloud auszutauschen. Mit der neuen API können autorisierte Drittanbieter-Apps nun ihre Daten in Fusion-Modelle einspeisen, wodurch Fusion besser in bestehende Workflows integriert und mit Cloud- und Desktop-Tools verbunden wird, die in der gesamten Branche verwendet werden.
Stand: 16.12.2025
Es ist für uns eine Selbstverständlichkeit, dass wir verantwortungsvoll mit Ihren personenbezogenen Daten umgehen. Sofern wir personenbezogene Daten von Ihnen erheben, verarbeiten wir diese unter Beachtung der geltenden Datenschutzvorschriften. Detaillierte Informationen finden Sie in unserer Datenschutzerklärung.
Einwilligung in die Verwendung von Daten zu Werbezwecken
Ich bin damit einverstanden, dass die WIN-Verlag GmbH & Co. KG, Chiemgaustraße 148, 81549 München einschließlich aller mit ihr im Sinne der §§ 15 ff. AktG verbundenen Unternehmen (im weiteren: Vogel Communications Group) meine E-Mail-Adresse für die Zusendung von redaktionellen Newslettern nutzt. Auflistungen der jeweils zugehörigen Unternehmen können hier abgerufen werden.
Der Newsletterinhalt erstreckt sich dabei auf Produkte und Dienstleistungen aller zuvor genannten Unternehmen, darunter beispielsweise Fachzeitschriften und Fachbücher, Veranstaltungen und Messen sowie veranstaltungsbezogene Produkte und Dienstleistungen, Print- und Digital-Mediaangebote und Services wie weitere (redaktionelle) Newsletter, Gewinnspiele, Lead-Kampagnen, Marktforschung im Online- und Offline-Bereich, fachspezifische Webportale und E-Learning-Angebote. Wenn auch meine persönliche Telefonnummer erhoben wurde, darf diese für die Unterbreitung von Angeboten der vorgenannten Produkte und Dienstleistungen der vorgenannten Unternehmen und Marktforschung genutzt werden.
Meine Einwilligung umfasst zudem die Verarbeitung meiner E-Mail-Adresse und Telefonnummer für den Datenabgleich zu Marketingzwecken mit ausgewählten Werbepartnern wie z.B. LinkedIN, Google und Meta. Hierfür darf die Vogel Communications Group die genannten Daten gehasht an Werbepartner übermitteln, die diese Daten dann nutzen, um feststellen zu können, ob ich ebenfalls Mitglied auf den besagten Werbepartnerportalen bin. Die Vogel Communications Group nutzt diese Funktion zu Zwecken des Retargeting (Upselling, Crossselling und Kundenbindung), der Generierung von sog. Lookalike Audiences zur Neukundengewinnung und als Ausschlussgrundlage für laufende Werbekampagnen. Weitere Informationen kann ich dem Abschnitt „Datenabgleich zu Marketingzwecken“ in der Datenschutzerklärung entnehmen.
Falls ich im Internet auf Portalen der Vogel Communications Group einschließlich deren mit ihr im Sinne der §§ 15 ff. AktG verbundenen Unternehmen geschützte Inhalte abrufe, muss ich mich mit weiteren Daten für den Zugang zu diesen Inhalten registrieren. Im Gegenzug für diesen gebührenlosen Zugang zu redaktionellen Inhalten dürfen meine Daten im Sinne dieser Einwilligung für die hier genannten Zwecke verwendet werden.
Recht auf Widerruf
Mir ist bewusst, dass ich diese Einwilligung jederzeit für die Zukunft widerrufen kann. Durch meinen Widerruf wird die Rechtmäßigkeit der aufgrund meiner Einwilligung bis zum Widerruf erfolgten Verarbeitung nicht berührt. Um meinen Widerruf zu erklären, kann ich als eine Möglichkeit das unter https://kontakt.vogel.de/de/win abrufbare Kontaktformular nutzen. Sofern ich einzelne von mir abonnierte Newsletter nicht mehr erhalten möchte, kann ich darüber hinaus auch den am Ende eines Newsletters eingebundenen Abmeldelink anklicken. Weitere Informationen zu meinem Widerrufsrecht und dessen Ausübung sowie zu den Folgen meines Widerrufs finde ich in der Datenschutzerklärung, Abschnitt Redaktionelle Newsletter.
Tools wie OpenBOM geben Nicht-Designern wichtige Einblicke in die Stückliste eines Projekts aus den Entwurfsdaten, indem sie einen webbasierten Prozess zur Automatisierung von Stücklisten-Workflows (BOM) erstellt. So entfällt zukünftig ein manueller, fehleranfälliger Prozess. Dies ist nun ebenfalls mit Fusion nutzbar.
Cideon funktioniert als bidirektionale Verbindung zwischen Fusion und SAP. Es ermöglicht CAD-Ingenieuren und Herstellern, die Informationen zur Unternehmensressourcenplanung (ERP) von SAP in Fusion zu sehen.
Ein Ökosystem vernetzter Werkzeuge für schnellere Zusammenarbeit
Autodesk arbeitet mit mehr als 150 Hardware- und Softwareanbietern zusammen, da Kunden beim Entwerfen und Herstellen auf ein breites Ökosystem von Werkzeugen angewiesen sind, die nahtlos zusammenarbeiten sollen.
Das Avnet-Plugin ermöglicht es Elektronikdesignern, auf eine Referenzdesignbibliothek zuzugreifen sowie Komponenten innerhalb von Fusion zu identifizieren, zu recherchieren, zu kalkulieren, zu beschaffen und zu erwerben.
(Bild: Autodesk)
Hierzu gibt es folgenden Innovationen, die auf der AU vorgestellt werden:
Paperless Parts in Fusion: Die Integration der Paperless Parts-Plattform in Fusion ermöglicht es Fertigungskalkulatoren, schnell Angebote aus den CAD-Modellen zu erstellen, die sie von Kunden erhalten. Unabhängig vom Dateiformat eines Modells kann der Hersteller zügig potenzielle Fertigungsprobleme identifizieren und Fusion verwenden, um Änderungen vorzunehmen, die die Herstellbarkeit eines Teils verbessern.
Avnet into Fusion: Das Avnet-Plugin ermöglicht es Elektronikdesignern, auf eine Referenzdesignbibliothek zuzugreifen sowie Komponenten innerhalb von Fusion zu identifizieren, zu recherchieren, zu kalkulieren, zu beschaffen und zu erwerben. Die Referenzdesignbibliothek bietet Schaltpläne und Projektbeschreibungen, die Ingenieure direkt in ihre Designs einfügen können. Der Zugang zu Avnets Lieferkettenexpertise und Daten ermöglicht eine Obsoleszenz-Planung und bietet Design-Sicherheit für die Herstellbarkeit. Diese Funktion allein kann die Markteinführungszeit eines Produkts erheblich verkürzen.
Makersite in Inventor: Das Makersite-Add-on, das jetzt verfügbar ist, bringt Nachhaltigkeitseinblicke in die Produktdesignphase in Inventor. Designer können die Umwelt- und Kostenwirkungen von Entwürfen berechnen, Materialersatzempfehlungen anzeigen, Heatmaps von Problembereichen in Bezug auf Nachhaltigkeit betrachten und den Fortschritt in Richtung Nachhaltigkeitsziele verfolgen, während sie Änderungen vornehmen.
NAVASTO in Alias Automotive: Das NAVASTO-Plugin wird die Windkanalsimulation in den frühen kreativen Designprozess von Alias einbringen. Es ermöglicht Designern, den Luftwiderstandsbeiwert einer Automobilhülle und dessen Aerodynamik vorherzusagen und zu optimieren. So sinkt die Notwendigkeit, dass Neugestaltungen während der Konstruktionsphase vorgenommen werden müssen.
Vielfältiges Programm auf der Autodesk University 2024
Neben näheren Informationen zu Neuentwicklungen und Erweiterungen des Kernportfolios erwartet die Besucher der Autodesk University 2024 vom 15. bis 17. Oktober 2024 ein vielfältiges Programm mit Keynotes, Einblicken aus der Praxis und einem Ausstellungsbereich, in dem auch interaktive Exponate präsentiert werden. Ergänzt wird das Tagungsprogramm durch besondere Highlights wie den D&M Design Slam. Außerdem kommen natürlich Gelegenheiten zum Netzwerken nicht zu kurz.